Diese imposante und außergewöhnliche Fabrikantenvilla mit Halle aus dem Baujahr 1993 befindet sich im Gewerbepark Neukirchen-Nord, ideal geeignet als Immobilie für Wohnen und Arbeiten an einem Ort.
Das gesamte Grundstück hat eine Fläche von ca. 7.109 m². Die Immobilie verfügt über zwei separate Eingänge und verteilt sich auf eine Wohn-u. Nutzfläche, sowie Gewerbefläche von insgesamt 924 m².
Linksseitig:
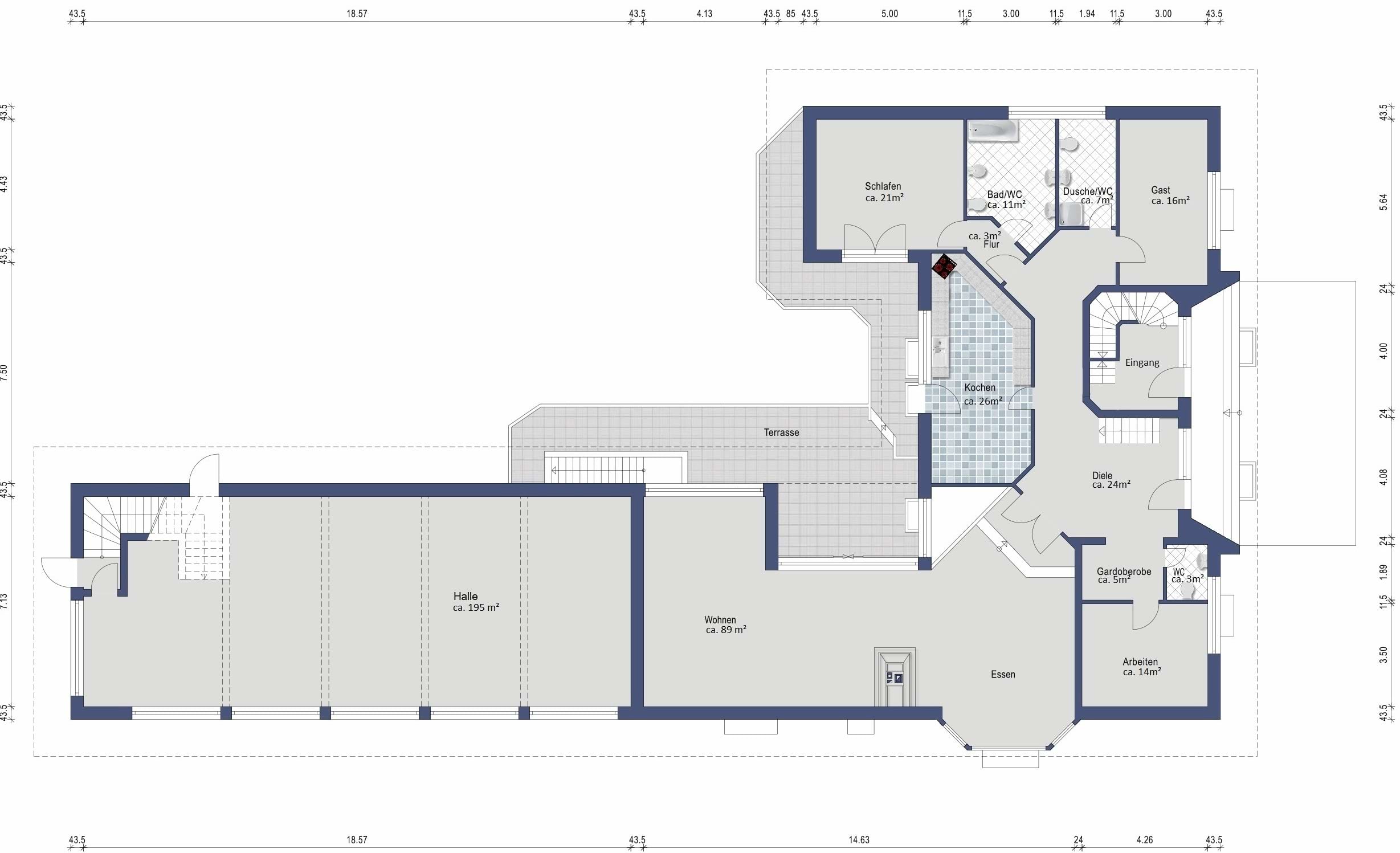
Im linken Teil des Hauses befinden sich die Wohnräumlichkeiten. Empfangen wird man hier von einem großzügigen und zentralen Eingangsbereich. Links vom Eingangsbereich befindet sich die Garderobe und das Gäste-WC sowie ein Zimmer, welches vom vorigen Eigentümer als Büro genutzt wurde.
Ein hochwertiger Marmor-Fliesen-Boden zieht sich durch das ganze Haus und verleiht diesem ein luxuriöses Ambiente. Insgesamt wurde das gesamte Anwesen seinerzeit sehr hochwertig ausgestattet. So sind unter anderem alle Holz-Fenster im Haus aus Sipo-Mahagoni.
Über die Diele gelangt man in den Wohnbereich, der über Stufen nach unten zu erreichen ist. Das Wohnzimmer hat eine Fläche von ca. 89 m² und ist das Herzstück dieser Wohneinheit. Blickfang ist hier der Kamin, welcher an kühlen Tagen Wärme und Gemütlichkeit spendet.
Eine große Fensterfront mit Schiebetüre lässt viel Licht in den Wohnbereich herein. Der vordere Teil dieses Zimmers eignet sich optimal für den Essbereich mit einer großen Tafel, an der die ganze Familie und Freunde Platz finden. Über die Schiebetür im Wohnbereich gelangt man auf die Terrasse.
Die geräumige Küche hat eine komfortable Größe und bietet zusätzlichen Platz für eine Essecke. Auch von hier aus gewährt die Immobilie Zugang auf den Terrassenbereich und in den hübsch angelegten Gärten.
Weiter über den Flur hinaus befindet sich auf der rechten Seite ein großes Gäste-/Kinderzimmer und ein großes Badezimmer, welches hell gefliest und mit einer Dusche ausgestattet ist.
Daneben befindet sich das Elternschlafzimmer, sehr praktisch mit angeschlossenem Bad en suite.
Auch dieses Badezimmer ist hell und freundlich gestaltet. Hier befinden sich eine Badewanne, ein Pissoir und zwei Waschbecken. Vorteilhaft sind die integrierten und innenliegenden Wandschränke. Diese bieten weiteren Staufläche, ohne dem Raum Platz zu nehmen. Rechts vom Eingang befindet sich der Abgang in den Keller.
Das Haupthaus ist voll unterkellert. Hier finden sich sieben weitere Räume sowie Heizungs- und Hausanschlussräume.
Weitere Sanitäranlagen sind hier auch zu finden, wie eine Toilette und ein separater Duschraum.
Über eine Außentreppe gelangt man direkt in den Keller - Hauswirtschaftsraum.
Rechtsseitig:
Über den rechten Eingang der Immobilie gelangt man in den oberen Teil des Hauses, der zu Nutzung als Büro geeignet ist. Hier finden sich fünf Räumlichkeiten/Büros und eine Teeküche. Das Obergeschoss verfügt über einen Terrassenbereich, der Mitarbeitern und Kunden eine angenehme Atmosphäre bietet. Der Blick ins Grüne und die umliegende Landschaft runden den Gesamteindruck noch positiv ab.
Vom Hauseingangsbereich gelangt man auch hier in den großzügigen Keller der gesamten Immobilie.
Direkt angrenzend an das Haus befindet sich eine Halle mit zwei Etagen, vormals genutzt für den ehemaligen Handwerksbetrieb, das damalige Stuckgeschäft. Des Weiteren befinden sich dort Sozialräume, nebst WC und Dusche. Ein großes Sektionaltor ermöglicht unkomplizierte Zufahrten/Lieferungen.
Es befinden sich insgesamt 12 Stellplätze und 2 Garagen auf dem Grundstück. Auf der großen Grünfläche mit den schönen Bäumen lässt sich hier - wenn gewünscht - ein wahres Paradies verwirklichen: Ob das Pony für die Kids, Plantschen im Sommer oder Fußballspielen mit Groß und Klein, hier scheint alles möglich.
Profitieren Sie beim Kauf dieser Immobilie von den unzähligen Optionen und kombinieren Sie Arbeit und Familie/Wohnen! Gerne zeigt Ihnen unser Geschäftsführer und Gutachter Uwe Dennesen das Potenzial dieser außergewöhnlichen Immobilie bei einem persönlichen Besichtigungstermin. Wir freuen uns auf Ihren Anruf!
Diese besondere Immobilie befindert sich im Gewerbepark Neukirchen-Nord. Neukirchen-Vluyn ist ein freundlicher, kleiner Ort am westlichen Rand des Ruhrgebiets. Im Umland finden sich viel Natur, Wiesen und Waldgebiete, genauso wie eine Vielzahl an Einkaufs- und Freizeitmöglichkeiten.
Neukirchen-Vluyn lässt sportlich kaum Wünsche offen - ob Schwimmbad, Golfplatz oder Drachen- und Gleitschrimfliegen - für jeden ist etwas dabei! Kulturell bietet die Stadt beispielsweise das Schloss Bloemersheim sowie die
historische Windmühle Dong. Im ortsgeschichtlichen Museum lässt sich die Historie der Stadt erforschen.
Zahlreiche Cafés und mehrere kleine Geschäfte bieten alle Waren des täglichen Gebrauchs. Immer wieder beleben kleine Veranstaltungen und Festlichkeiten den Ort!
Durch die äußerst günstige Anbindung an die Autobahnen A40 und A57 ist Neukirchen-Vluyn mit dem Auto gut zu erreichen. Mit dem öffentlichen Verkehrsmitteln gelangt man in die umliegenden Ortschaften. Neukirchen-Vluyn bietet nahen Zugang zum Düsseldorfer Flughafen.
| Objektart: | Einfamilienhaus Wohn- und Geschäftshaus |
|---|---|
| Baujahr: | 1993 |
| Wohnfläche: | 219 m² |
| Grundstücksfläche: | 7109 m² |
| Heizung: | Öl, Fußboden- oder Wandheizung |
| Kaufpreis: | 1.665.440 EUR |
| Provision: | 4,76% zzgl. MwSt. |
| Primärenergieverbrauch | 182 kWh |
| Endenergieverbrauch | 165 kWh |
